Make it your own

Our Ready to Build plans are here to spark ideas and to make building your new home easy. Each plan has been carefully designed by our team and is ready to go, just as it is. But you’re never locked in.
Want to make a few changes? Go for it. Think of these plans as a starting point:
Print them out. Sketch on them. Move walls. Flip layouts. Reconfigure bedrooms. Add storage. Remove what you don’t need. Whether you want to tweak just a little or design something totally custom, we’re here to help shape the home around your lifestyle.

talk to us

0800 800 450

take the first step - contact us

Name

explore our house plans

Plan 1

Floor size: 57.4 sqm
Features

– Two bedrooms
– Combined bathroom and laundry
– Open plan kitchen and living

Plan 1
Plan 1 floor plan

Plan 2

Floor size: 70 sqm
Features

Features
– Two double bedrooms
– Separate bathroom and toilet
– Open plan kitchen and living

Plan 2
Plan 2 floor plan

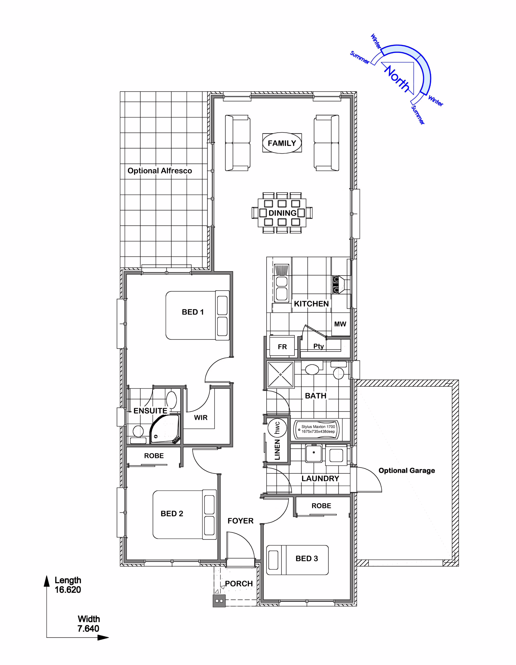
Plan 3

Floor size: 107 sqm
Features

– 3 bedrooms
– Combined bathroom and laundry
– Custom Design Kitchens

Plan 3
Plan 3 floor plan

Plan 4

Floor size: 128 sqm
Features

– 3 bedrooms
– Separate kitchen and laundry
– Kitchen island for relaxed dining
– 2 Bathrooms

Plan 4
Plan 4 floor plan

Plan 5

Floor size: 91 sqm
Features

– 2 bedrooms
– Separate kitchen and laundry
– Kitchen island for relaxed dining
– 1 Bathrooms

Plan 5
Plan 5 floor plan

Plan 6

Floor size: 106 sqm
Features

– 3 bedrooms
– Separate kitchen and laundry
– Kitchen island for relaxed dining
– 2 Bathrooms

Plan 6
Plan 6 floor plan

Plan 7

Floor size: 99 sqm
Features

– 3 bedrooms
– Separate kitchen and laundry
– Kitchen island for relaxed dining
– 2 Bathrooms

Plan 7
Plan 7 floor plan

Plan 8

Floor size: 126 sqm
Features

– 3 bedrooms
– Separate kitchen and laundry
– Kitchen island for relaxed dining
– 2 Bathrooms

Plan 8
Plan 8 floor plan

Plan 9

Floor size: 120 sqm
Features

– 3 bedrooms
– Separate kitchen and laundry
– Kitchen island for relaxed dining
– 2 Bathrooms

Plan 9
Plan 9 floor plan

Plan 10

Floor size: 304 sqm
Features

– 4 bedrooms
– Separate kitchen and laundry
– Kitchen island for relaxed dining
– 2.5 Bathrooms

Plan 10
Plan 10 floor plan

Plan 11

Floor size: 252 sqm
Features

– 4 bedrooms
– Separate kitchen and laundry
– Kitchen island for relaxed dining
– 2.5 Bathrooms

Plan 11
Plan 11 floor plan

Plan 12

Floor size: 150 sqm
Features

– 4 bedrooms
– Open kitchen and laundry
– Kitchen island for relaxed dining
– 2.5 Bathrooms

Plan 12
Plan 12 floor plan

Our whole team is deeply invested in creating your house, collaborating with each other and you to achieve what is in the project’s best interests – balancing design flair, building pragmatism, value analysis and, most of all, your wishes and inspiration as the owner.

frequently asked questions

The timeline for building a new home can vary depending on the size and complexity of the design, as well as factors like weather and site conditions. On average, it takes around 6 to 12 months from the start of construction to the completion of the home. We’ll provide you with a detailed timeline specific to your project once your design is finalised.

The base price typically includes the cost of the home’s structure, basic fixtures, and standard finishes as outlined in our inclusions list. It may not include additional features like landscaping, upgraded finishes, or custom design changes. We’ll go through everything in detail with you so you know exactly what’s included. You can find out more about our Inclusions packages here.

Absolutely! We offer a range of customisation options so you can tailor the floor plan to suit your needs. Whether it’s adding an extra bedroom, changing the layout, or upgrading materials, our team will work with you to create a home that fits your lifestyle. Find out more about our innovative design studio, HOMEi™ here.

Yes, we have extensive experience building on sloping blocks and challenging sites. Our team will assess your land and design a home that works with the natural contours of your block, ensuring stability and aesthetic appeal.

Our 12 Month Digital Warranty and Maintenance and 6 Year Structural Warranty provide complete peace of mind, so your home remains safe, sound, and built to last. We’re committed to quality and stand behind the homes we build, giving you peace of mind with your investment.

We encourage you to be as involved as you’d like. Regular site visits are welcome, and we’ll keep you updated with progress reports at key stages of the build. Your input is valuable, and we’re here to make sure your vision comes to life.

we specialise in building exceptional homes for Kiwi families.

Get started on your dream home journey today with affordable builders.

our affiliates